GB/T 17428-2009 通風管道耐火試驗方法
- 發表時間:2022-12-11
- 來源:共立消防
- 人氣:
警示:
組織和參加本項試驗的所有人員應注意,耐火試驗可能有危險。在耐火試驗過程中有可能產生有毒和/或有害的煙塵和煙氣。在試件安裝、試驗過程和試驗后殘余物的清理過程中,也可能出現機械危害和操作危險。
在耐火試驗后,拆除管道前,管道應完全冷卻,達到可燃殘余物無復燃的可能。
應對所有潛在的危險及對健康的危害進行評估,并做出安全預告。應頒布操作規程,對相關人員進行必要的培訓,確保實驗室工作人員按操作規程操作。
1 范圍
本標準規定了水平通風管道在標準火條件下的耐火性能試驗方法,用來檢驗通風管道承受外部火(管道A)和內部火(管道B)作用時的耐火性能。垂直管道的耐火試驗可參照本標準執行。
本標準不適用于:
a) 耐火性能取決于吊頂耐火性能的管道;
b)帶檢修門的管道,除非將檢修門納入到管道中一起試驗;
c) 兩面或三面的管道;
d) 排煙管道;
e)與墻或樓板連接的吊掛固定件。
2 規范性引用文件
下列文件中的條款通過本標準的引用而成為本標準的條款。凡是注日期的引用文件,其隨后所有的修改單(不包括勘誤的內容)或修訂版均不適用于本標準,然而,鼓勵根據本標準達成協議的各方研究是否可使用這些文件的最新版本。凡是不注日期的引用文件,其最新版本適用于本標準。
GB/T 5907 消防基本術語 第一部分
GB/T 9978.1 建筑構件耐火試驗方法 第1部分:通用要求(GB/T 9978.1-2008,ISO 834-1:1999,MOD)
3 術語和定義
GB/T 5907、GB/T 9978.1確立的以及下列術語和定義適用于本標準。
3.1
吊掛固定件 suspending element
用來將管道吊掛在梁板上或固定到墻體上的部件。
3.2
支承結構 supporting element
試驗中管道穿越的墻體或隔墻。
4 試驗裝置
4.1 總則
除了GB/T 9978.1規定的試驗裝置外,本試驗還需要以下裝置。
4.2 試驗爐
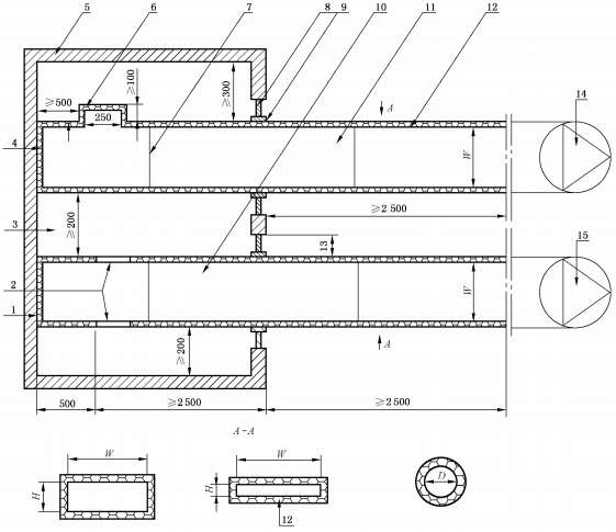
滿足GB/T 9978.1規定的標準升溫和壓力條件,并適合水平方向安裝管道,見圖1。

1——爐內約束的位置;
2——總面積為管道截面50%的開口;
3——爐膛;
4——管道密封端;
5——爐墻;
6——T型支管密封端;
7——管道接縫;
8——支承結構;
9——和實際相同的防火封堵;
10——管道B;
11——管道A;
12——通風管道:
13——最小為200mm的支承結構;
14——風機A;
15——風機B;
W——管道寬度;
H——管道高度;
D——管道直徑。
注:此圖表示的是兩個管道同時試驗的情況,允許在試驗爐上每次對一根管道進行試驗。
圖1 管道的試驗安裝示意圖
4.3 風機A
在試驗開始和整個試驗過程中能使管道A內保持(300±15)Pa的壓差,可以直接或通過適當長度的管道與試件相連接。壓力測量儀表的準確度為士3Pa。
4.4 風機B
試驗開始前,在環境溫度下,使管道B內保持(3±0.45)m/s的空氣流速。可以直接或通過適當長度的管道與試件相連接。風機應設置一個旁通風口,可以在4.5中描述的截止閥關閉前打開。流速測量儀表的準確度為±5%。
4.5 截止閥
截止閥應安裝在風機B和試件之間。在風機B處于“停止”狀態下,通過隔斷管道B內的空氣流動來評價管道B的耐火完整性。
5 試驗條件
試驗爐內加熱條件和壓力條件應滿足GB/T 9978.1的規定。
試驗過程中,管道承受的試驗條件應滿足10.2的規定。
6 試件
6.1 尺寸
6.1.1 總則
除了表1和表2給出的尺寸,其他尺寸的管道在應用時應符合14.2的規定。
6.1.2 長度
試件在爐內和爐外的最小長度見表1。
表1 試件的最小長度
最小長度/m | |
爐內 | 爐外 |
3.0 | 2.5 |
6.1.3 截面
應使用表2給出的標準尺寸的管道進行試驗,除非實際使用的截面尺寸小于此尺寸。
表2 試件的截面尺寸
管 道 | 矩 形 | 圓 形 | |
寬度/mm | 高度/mm | 直徑/mm | |
A | 1000±10 | 500±10 | 800±10 |
B | 1000±10 | 250±10 | 630±10 |
6.2 數量
管道A和管道B各需一個試件進行試驗。
6.3 設計
6.3.1 總則
應對整個有代表性的管道總成進行試驗。爐內和爐外管道的邊界條件和固定或支承方法也應反映實際使用情況。
以上為標準部分內容,如需看標準全文,請到相關授權網站購買標準正版。
-
IG541混合氣體滅火系統
IG541混合氣體滅火系統:IG-541滅火系統采用的IG-541混合氣體滅火劑是由大氣層中的氮氣(N2)、氬氣(Ar)和二氧化碳(CO2)三種氣體分別以52%、40%、8%的比例混合而成的一種滅火劑 -
二氧化碳氣體滅火系統
二氧化碳氣體滅火系統:二氧化碳氣體滅火系統由瓶架、滅火劑瓶組、泄漏檢測裝置、容器閥、金屬軟管、單向閥(滅火劑管)、集流管、安全泄漏裝置、選擇閥、信號反饋裝置、滅火劑輸送管、噴嘴、驅動氣體瓶組、電磁驅動 -
七氟丙烷滅火系統
七氟丙烷(HFC—227ea)滅火系統是一種高效能的滅火設備,其滅火劑HFC—ea是一種無色、無味、低毒性、絕緣性好、無二次污染的氣體,對大氣臭氧層的耗損潛能值(ODP)為零,是鹵代烷1211、130 -
手提式干粉滅火器
手提式干粉滅火器適滅火時,可手提或肩扛滅火器快速奔赴火場,在距燃燒處5米左右,放下滅火器。如在室外,應選擇在上風方向噴射。使用的干粉滅火器若是外掛式儲壓式的,操作者應一手緊握噴槍、另一手提起儲氣瓶上的


