MT 236-2011 矩形鋼罐道 滾輪罐耳
- 發表時間:2022-10-11
- 來源:共立消防
- 人氣:
1 范圍
本標準規定了矩形鋼罐道滾輪罐耳(以下簡稱滾輪罐耳)的產品分類、技術要求、試驗方法、檢驗規則、標志、包裝、運輸和貯存。
本標準適用于立井提升容器(箕斗、罐籠、平衡錘)沿矩形鋼罐道導向的滾輪罐耳。
2 規范性引用文件
下列文件中的條款通過本標準的引用而成為本標準的條款。凡是注日期的引用文件,其隨后所有的修改單(不包括勘誤的內容)或修訂版均不適用于本標準,然而,鼓勵根據本標準達成協議的各方研究是否可使用這些文件的最新版本。凡是不注日期的引用文件,其最新版本適用于本標準。
GB/T 700 碳素結構鋼(GB/T 700-2006,ISO 630:1995,NEQ)
GB/T 985.1 氣焊、焊條電弧焊、氣體保護焊和高能束焊的推薦坡口(GB/T 985.1-2008,ISO 9692-1:2003,MOD)
GB/T 1184-1996 形狀和位置公差 未注公差值(eqv ISO 2768-2:1989)
GB/T 1804-2000 一般公差 未注公差的線性和角度尺寸的公差(eqv ISO 2768-1:1989)
GB/T 9286 色漆和清漆 漆膜的劃格試驗(GB/T 9286-1998,eqv ISO 2409:1992)
GB/T 10111 隨機數的產生及其在產品質量抽樣檢驗中的應用程序
JB/T 5000.3-2007 重型機械通用技術條件 第3部分:焊接件
JB/T 5000.10 重型機械通用技術條件 第10部分:裝配
JB/T 5000.12-2007 重型機械通用技術條件 第12部分:涂裝
MT/T 154.1 煤礦機電產品型號編制方法 第1部分:導則
《煤礦安全規程》 (國家安全生產監督管理總局)
3 產品分類
3.1 型式
3.1.1 滾輪罐耳由單排輪或雙排輪滾輪、緩沖裝置和底架組成。
3.1.2 滾輪罐耳的緩沖裝置采用蝶型彈簧或橡膠彈簧為緩沖元件,或采用彈簧和液壓-氣壓緩沖減振器組合裝置。
3.1.3 滾輪的內圈安裝滾動軸承。滾輪的外輪材料采用聚氨酯橡膠或橡膠。
3.1.4 滾輪罐耳沿矩形鋼罐道導向,通常采用一組3個,在矩形鋼罐道的正面使用單排輪或雙排輪滾輪罐耳,兩側面使用單排輪滾輪罐耳。
3.2 分類
滾輪罐耳按滾輪直徑和列數分為8個品種:
a)單排輪滾輪罐耳 ?200mm,見圖1;
b)單排輪滾輪罐耳 ?250mm,見圖1;
c)單排輪滾輪罐耳 ?300mm,見圖1;
d)單排輪滾輪罐耳 ?350mm,見圖1;
e)單排輪滾輪罐耳 ?425mm,見圖1;
f)雙排輪滾輪罐耳 ?300mm,見圖1;
g)雙排輪滾輪罐耳 ?350mm,見圖1;
h)雙排輪滾輪罐耳 ?425mm,見圖1。
3.3 產品型號
3.3.1 滾輪罐耳的型號編制方法應符合MT/T 154.1的規定。
3.3.2 產品型號的組成和排列方式如下:

示例:
直徑?350mm,雙排輪的滾輪罐耳,其型號為:

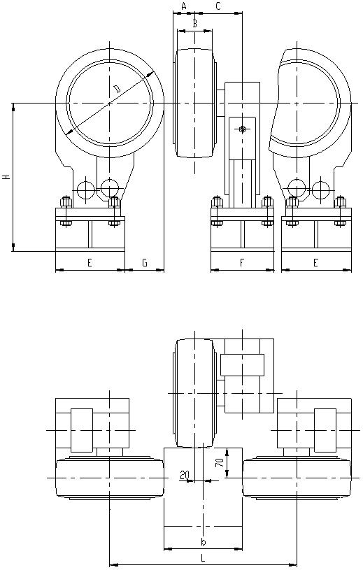
3.4 基本參數與主要尺寸
3.4.1 滾輪灌耳的基本參數應符合表1的規定。
3.4.2 滾輪灌耳的主要尺寸應符合圖1、圖2和表2的規定。

圖1 單排輪滾輪罐耳
以上為標準部分內容,如需看標準全文,請到相關授權網站購買標準正版。
-
IG541混合氣體滅火系統
IG541混合氣體滅火系統:IG-541滅火系統采用的IG-541混合氣體滅火劑是由大氣層中的氮氣(N2)、氬氣(Ar)和二氧化碳(CO2)三種氣體分別以52%、40%、8%的比例混合而成的一種滅火劑 -
二氧化碳氣體滅火系統
二氧化碳氣體滅火系統:二氧化碳氣體滅火系統由瓶架、滅火劑瓶組、泄漏檢測裝置、容器閥、金屬軟管、單向閥(滅火劑管)、集流管、安全泄漏裝置、選擇閥、信號反饋裝置、滅火劑輸送管、噴嘴、驅動氣體瓶組、電磁驅動 -
七氟丙烷滅火系統
七氟丙烷(HFC—227ea)滅火系統是一種高效能的滅火設備,其滅火劑HFC—ea是一種無色、無味、低毒性、絕緣性好、無二次污染的氣體,對大氣臭氧層的耗損潛能值(ODP)為零,是鹵代烷1211、130 -
手提式干粉滅火器
手提式干粉滅火器適滅火時,可手提或肩扛滅火器快速奔赴火場,在距燃燒處5米左右,放下滅火器。如在室外,應選擇在上風方向噴射。使用的干粉滅火器若是外掛式儲壓式的,操作者應一手緊握噴槍、另一手提起儲氣瓶上的


