MT 234-1991 3t礦車 立井多繩罐籠
- 發表時間:2022-08-30
- 來源:網絡
- 人氣:
1 主題內容與適用范圍
本標準規定了 3 t礦車 立井多繩罐籠(以下簡稱罐籠)的產品分類、技術要求、試驗方法、檢驗規則 和標志、包裝、運輸、貯存。
本標準適用于3 t礦車立井多繩罐籠。罐籠與多繩摩擦式提升機和組合鋼罐道配合,用于提升 3 t標準礦車、設備或人員。
本標準與首繩懸掛裝置、尾繩懸掛裝置和滾輪罐耳配套使用。
2 引用標準
GB 699 優質碳素結構鋼鋼號和一般技術條件
GB 700 普通碳素結構鋼技術條件
GB 1184 形狀和位置公差未注公差的規定
GB 1228 鋼結構用高強度大六角頭螺栓
GB 1229 鋼結構用高強度大六角螺母
GB 1230 鋼結構用高強度墊圈
GB 1231 鋼結構用高強度大六角頭螺栓、大六角螺母、墊圈技術條件
GB 1804 公差與配合未注公差尺寸的極限偏差
GB 3322.1煤礦礦車基本參數及尺寸 固定車箱式
GB 3632 鋼結構用扭剪型高強度螺栓連接副型式尺寸
GB 3633 鋼結構用扭剪型高強度螺栓連接副技術條件
GBJ 17 鋼結構設計規范
JB/ZQ 3011 工程機械焊接件通用技術條件
MT 236 組合鋼罐道滾輪罐耳
3 術語
3.1 罐體:本標準規定不含首、尾繩懸掛裝置、滾輪罐耳在內的罐籠本體部分簡稱罐體。
3.2 首繩懸掛裝置:罐體與提升繩之間的連接裝置。
3.3 尾繩懸掛裝置:平衡鋼絲繩與罐體底部的連接裝置(分有圓、扁兩種尾繩懸掛裝置)。
3.4 過卷托罐逆止爪裝置:罐籠在井口過卷后,為防止罐籠下墜的安全裝置。
3.5 四角罐耳:罐籠在進出車水平,為穩罐而設置在罐籠四角的導向件。
3.6 制動罐耳:進入楔形罐道的剛性罐耳。
4 產品分類
4.1 品種
本標準共編制6個品種
a. 一層一車窄罐籠(圖1)
b. 一層一車寬罐籠(圖2)
c. 二層二車窄罐籠(圖3)
d. 二層二車寬罐籠(圖4)
e. 三層二車窄罐籠(圖5)
f. 三層二車寬罐籠(圖6)

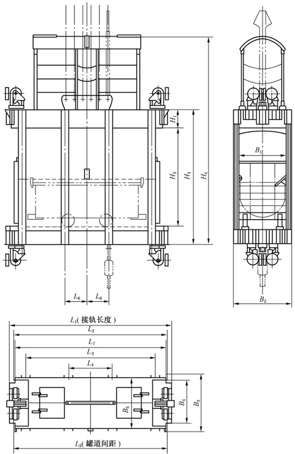
圖1 一層一車窄罐籠

以上為標準部分內容,如需看標準全文,請到相關授權網站購買標準正版。
-
IG541混合氣體滅火系統
IG541混合氣體滅火系統:IG-541滅火系統采用的IG-541混合氣體滅火劑是由大氣層中的氮氣(N2)、氬氣(Ar)和二氧化碳(CO2)三種氣體分別以52%、40%、8%的比例混合而成的一種滅火劑 -
二氧化碳氣體滅火系統
二氧化碳氣體滅火系統:二氧化碳氣體滅火系統由瓶架、滅火劑瓶組、泄漏檢測裝置、容器閥、金屬軟管、單向閥(滅火劑管)、集流管、安全泄漏裝置、選擇閥、信號反饋裝置、滅火劑輸送管、噴嘴、驅動氣體瓶組、電磁驅動 -
七氟丙烷滅火系統
七氟丙烷(HFC—227ea)滅火系統是一種高效能的滅火設備,其滅火劑HFC—ea是一種無色、無味、低毒性、絕緣性好、無二次污染的氣體,對大氣臭氧層的耗損潛能值(ODP)為零,是鹵代烷1211、130 -
手提式干粉滅火器
手提式干粉滅火器適滅火時,可手提或肩扛滅火器快速奔赴火場,在距燃燒處5米左右,放下滅火器。如在室外,應選擇在上風方向噴射。使用的干粉滅火器若是外掛式儲壓式的,操作者應一手緊握噴槍、另一手提起儲氣瓶上的


